È stato presentato in Commissione Urbanistica e Verde del Municipio 1 il progetto di fattibilità tecnico-economica per la riqualificazione di piazza Santo Stefano, uno degli interventi prioritari dell’Amministrazione comunale. L’obiettivo è restituire la piazza alla fruizione pedonale, trasformandola da parcheggio per auto in luogo di incontro e socialità, con particolare attenzione alla sostenibilità ambientale e alla valorizzazione del patrimonio storico.
Un nuovo spazio per cittadini e studenti
Il progetto intende restituire a piazza Santo Stefano la funzione originaria di spazio pubblico di relazione, in equilibrio tra tutela architettonica e innovazione urbana.
“Prosegue il nostro impegno per restituire lo spazio pubblico alle persone – ha dichiarato l’assessora all’Arredo urbano, Quartieri e Decentramento Gaia Romani –. Si tratta di una vera rinascita per questa piazza, rimasta per troppo tempo destinata alle automobili. Con la riqualificazione consegniamo alla città una nuova agorà pubblica, aperta agli studenti e ai lavoratori del centro storico”.
Verde e sostenibilità al centro del progetto
L’intervento prevede la rimozione dell’asfalto e la realizzazione di una nuova pavimentazione permeabile con materiali tradizionali come masselli, lastre, cordoni di recupero e calcestre, favorendo l’integrazione con l’ambiente storico circostante.
Secondo l’assessora all’Ambiente e Verde Elena Grandi, il progetto “trasformerà una piazza monumentale oggi occupata dalle auto in uno spazio verde e accessibile, riducendo le isole di calore e migliorando la resilienza climatica. È un nuovo tassello nella trasformazione di Milano in una vera e propria ‘città spugna’”.
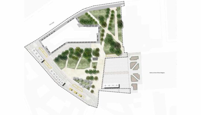
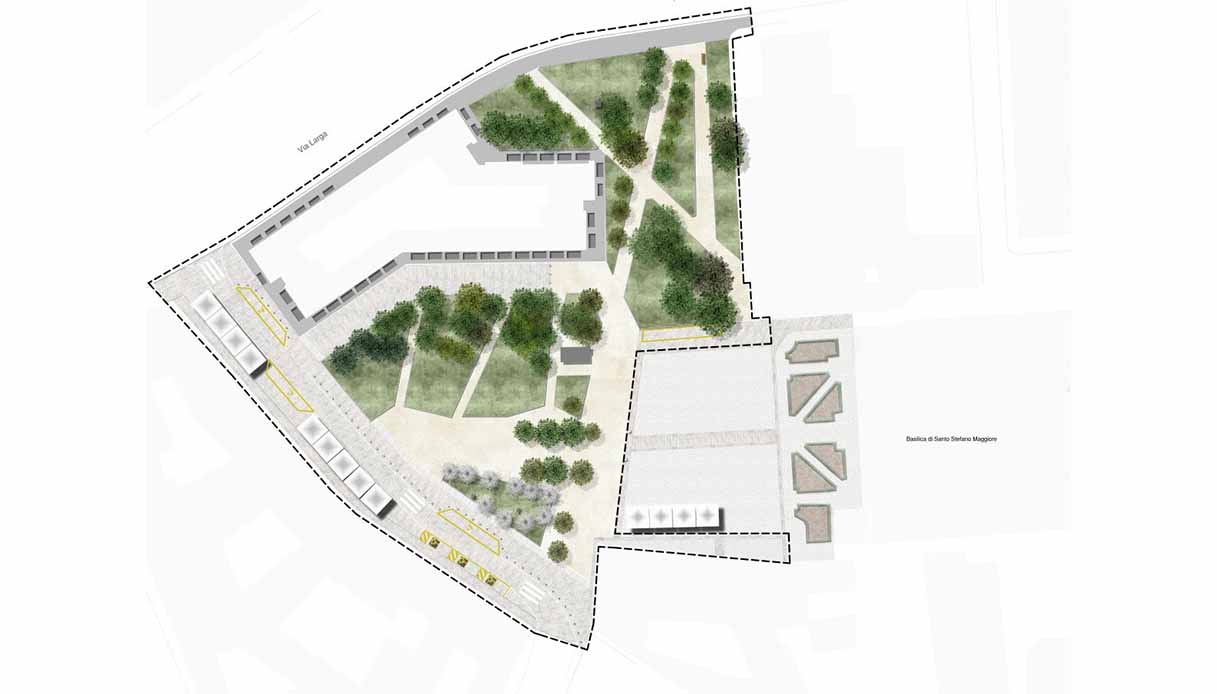
Intervento su 4.500 metri quadrati
La riqualificazione riguarda un’area complessiva di 4.500 metri quadrati, di cui circa 1.800 metri quadrati saranno dedicati a nuove zone verdi con essenze arbustive, graminacee e alberature autoctone, selezionate per ridurre il fabbisogno idrico e favorire un ecosistema urbano sostenibile.
Sono previsti percorsi accessibili, nuovi arredi urbani, un impianto di illuminazione a basso consumo e una riorganizzazione dello spazio che valorizza l’asse storico tra via Larga, via Brolo, Verziere e Santo Stefano, restituendo continuità al tessuto urbano.
Un percorso di rigenerazione del centro storico
“Con l’intervento su piazza Santo Stefano – ha spiegato il presidente del Municipio 1 Mattia Abdu – si completa un percorso di riqualificazione che ha interessato tutto il quadrante attorno al Duomo. In dieci anni, aree come piazza Missori, largo Augusto, San Babila e Cordusio sono state trasformate da snodi del traffico in spazi pedonali dedicati alla cittadinanza”.
Coerenza con i vincoli monumentali
La progettazione di piazza Santo Stefano è stata sviluppata nel rispetto dei vincoli monumentali, paesaggistici e archeologici dell’area, garantendo la compatibilità tra valorizzazione del patrimonio storico e uso contemporaneo dello spazio urbano.











